+11º
пасмурно
ветер 5,2 м/с, ЮЗ

Реклама: ООО "ОЛЕАНДР-МЕД", ИНН 9111026025

Реклама: ИП Бехтер А.А., ИНН 911113102616

Реклама: ИНН 910806164654 - ИП Лукьянова А.А.

Реклама: Самозанятый Вандышев Александр Николаевич, ИНН 911113162887

Реклама: ООО "Похоронный дом "Феникс", ИНН 9111027526

Реклама: ИП Бережной А.Г., ИНН 911116150093

Реклама: ООО «НПП «Вентос-Крым» ИНН 9111011396 

Реклама: ИП Кравченко Е. Л., ИНН 911109375963

Реклама: ООО "ПРАЙМЕР", ИНН 9102054851

Архив
«    Август 2019    »
ПнВтСрЧтПтСбВс
 1234
567891011
12131415161718
19202122232425
262728293031 
15.08.2019 16:00 3 827 Новости » Бизнес новости

Видеообзор ремонта квартиры в Керчи по ул. Гагарина

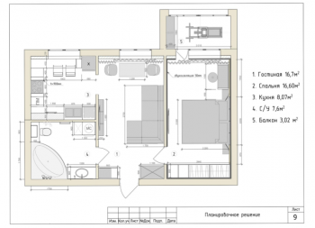
Наша недавняя работа - ремонт трёхкомнатной квартиры в Керчи «под ключ». С нуля был разработан дизайн-проект, произведена перепланировка квартиры, выполнены все отделочные и строительные работы.

https://www.youtube.com/watch?v=fNevMzbhgWI

kerchremont.com

Всё начинается с важнейшего этапа при ремонте квартиры - проектирования. Создание проекта - тонкое и кропотливое дело, которое стоит доверить профессионалам, чтобы избежать лишних затрат в будущем и получить тот результат, который Вас не разочарует.

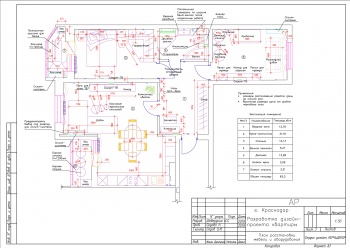
Любые перепланировки сопровождаются проектной документацией, такой подход даёт уверенность в безопасности предстоящих работ. Компания «КЕРЧЬРЕМОНТ» окажет Вам юридическое сопровождение на ВСЕХ этапах ремонта.

  

Планируете ремонт квартиры или строительство дома в Керчи?

ЗАПИШИТЕСЬ НА БЕСПЛАТНУЮ КОНСУЛЬТАЦИЮ С УЧАСТИЕМ АРХИТЕКТОРА И  ПРОРАБА В НАШЕМ ОФИСЕ !

ПОЧЕМУ СТОИТ ПОСЕТИТЬ НАШ ОФИС И САЛОН-МАГАЗИН ПЕРЕД ТЕМ, КАК ПРОИЗВОДИТЬ ЗАМЕР НА ОБЪЕКТЕ:

  1. У нас в шоу-руме архитектор и прораб смогут на наглядных образцах помочь Вам сразу определиться по какой технологии в вашем случае производить ремонтно-строительные работы, чтобы они максимально соответствовали критерию цена/качество.
  2. Наш архитектор даст бесплатные консультации по планировочным решениям будущего дома или квартиры, а также продемонстрирует готовые проекты, чтобы Вам было легче ориентироваться в вариантах дизайна и проектирования.
  3. После знакомства мы сможем провести Вас по нашим текущим объектам, чтобы Вы вживую могли увидеть процесс, качество выполняемых работ, наших специалистов и их оснащение.

 Звоните нам по номеру +7 978 715 70 60 или +7 978 888 67 73 и выбирайте удобное для вас время - мы работаем без выходных!

Посмотрите видеоотзыв от одного из наших клиентов или другие отзывы на нашем сайте https://kerchremont.com/video.php

 

СМОТРЕТЬ ВИДЕО

Мы выполняем проектирование домов и интерьерные дизайн-проекты, строим дома и ремонтируем квартиры, дома и офисы в Керчи с 2004 года.

Дизайн-проект — это неотъемлемая часть при создании интерьера вашей мечты. Каждый проект индивидуален и должен разрабатываться под нужды конкретного человека, с учетом особенностей планировки объекта. Поэтому на его создание затрачивается много времени и кропотливой работы. В состав дизайн-проекта интерьера входят как правило не только финальные визуализации, но и 20-30 листов с рабочими схемами и чертежами, поясняющими все решения, плюс спецификации, в которых указан весь перечень отделочных материалов, техники, осветительных приборов, мебели и аксессуаров.

   

Одним из наших основных направлений также является строительство домов “под ключ” и утепление фасадов в Керчи и Ленинском районе.

 

СМОТРЕТЬ ВИДЕО

 

                                                    

СМОТРЕТЬ ВИДЕО

Мы знаем, каким производителям можно доверять и несем за их продукцию ответственность.

Особого внимания заслуживает наш надежный партнер:

СЕТЬ СТРОИТЕЛЬНЫХ МАГАЗИНОВ «ВЕЗУМАТЕРИАЛЫ.РФ»

Адрес: ул. Генерала Петрова, 18 и ул. Ворошилова, 3а

Телефон: 8 (978) 134-777-4

Режим работы:  пн-пт - 8:00 - 18:00, сб - 8:00 - 17:00, вс - 8:00 - 16:00

«Работая с нами - Вы получаете реальную экономию денежных средств, времени и нервов!»

Приглашаем вас также посетить наш обновленный салон отделочных материалов «КЕРЧЬДЕКОР».

У нас огромный ассортимент кафеля и керамогранита, входные и межкомнатные двери, ламинат, паркет, пробка, кварцвинил, обои. багеты, мебель для кухни и ванных комнат и многое другое

«КЕРЧЬДЕКОР» - салон красоты вашего дома.

 

СМОТРЕТЬ ПРОМО-РОЛИК

   

 

Адрес: ул. Сморжевского, 4

Телефон: 8 (978) 97 91 833

Режим работы:  пн-пт - 9:00 - 18:00, сб-вс - 9:00 - 16:00

 

Больше информации о других услугах на нашем сайте

 kerchremont.com

Заказать бесплатный расчет стоимости теплоизоляции стен любым материалом вы можете, связавшись с менеджером по телефону

+7 978 715 70 60 или отправив запрос на почту kerchremont@mail.ru

Контакты:

Сморжевского 4, входы со стороны Кирова и Сморжевского

+7 978 715 70 60 (вотсап, вайбер)

Если вы увидели опечатку в тексте самой статьи, то выделите её и нажмите Ctrl+Enter.

Добавить комментарий
Информация
Комментировать статьи на сайте возможно только в течении 10 дней со дня публикации.

Реклама на ФМ

Изготовление памятников

Реклама: ИП Кара - Иванов Ф. Л., ИНН 911108712253

Реклама: ИП Бережной А.Г., ИНН 911116150093

Реклама: ИП Войтов В. В., ИНН 911101031030

Реклама: ИП Горбунова Е.Г., ИНН 911103181168

Реклама: ООО "АКР", ИНН 9111029178

Реклама: ИП Ищенко Е. А., ИНН 911100179516

Магазин «AUTOРАЙ» в Керчи!

Реклама: ИП Аникин Д.А., ИНН 911108952720

Реклама: ИП Лошенко Е.А., ИНН 911109343707

Реклама: ООО «ММГ Скейтинг», ИНН 7718552410

Реклама: ИП Павленко М. Р., ИНН 911103871108

Реклама: ИП Киргетова Д. С., ИНН 9 111 097 444 66

Реклама: ИП Батурина-Казбанова Виктория Геннадьевна, ИНН 910510158934

Реклама: ИП Люшняк Р. А., ИНН 911100108113

Реклама: ООО «Зимний Сад» , ИНН 9111004342

Фабрика натяжных потолков «Виктория»

Реклама: ИП Бережной А.Г., ИНН 911116150093

Наверх